以柔和光影為主軸,透過低彩度奶茶色與榆木色材質的交織,營造出靜謐而溫潤的居家氣息。
案名:看見柔光微醺
類型:預售屋全室設計
區域:台北市中山區
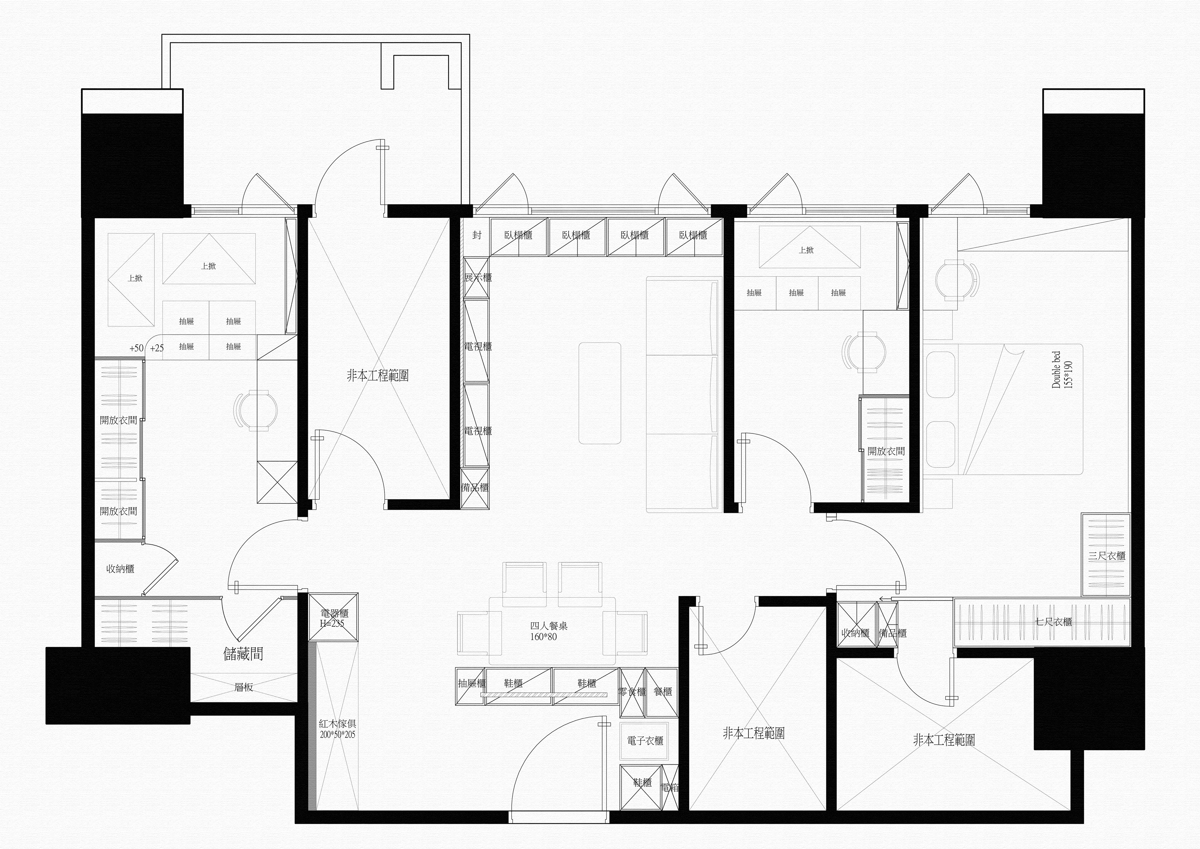
空間:三房兩廳兩衛
面積:24坪
完工:2024年12月
攝影:原間影像
《看見柔光微醺》是獻給一家四口的溫柔居所提案。
無論是典藏實木傢俱及家族回憶的父母,或是喜好新鮮事物及展現自我的可愛姊妹,我們都透過積極的溝通瞭解,在有限的空間內砌築出家人們都滿意的美宅成果。
在本案中您將能看到一些經典的居家配置多用途化,證明即使是坪數不大,透過合理安排及巧思,仍能體現優良的居住品質和情感回饋。
🏡 動線與場域的圍合設計:為了讓家人在客廳區域自然聚攏,設計了沙發、臥榻、餐桌三面包圍的佈局。圍合式設計讓家人們的主要活動路線在客廳交匯,創造出更多互動與交流的機會。
❤️休閒陣容極致:配置了極致的休閒陣容:臥榻、沙發、按摩椅,讓家人能夠隨時隨心切換多方休閒模式,無論是追劇、閱讀還是徹底放鬆,將專屬於家的舒適度拉到最滿。
⭐弧形天花:柔和圓潤的弧形天花設計是貫徹溫柔風格的細節之一,不僅避免了生硬的稜角讓光線過渡更為柔和,同時也讓整體空間氛圍更具包容性與流動感。
👜餐區置物輔助:打造居住者日常使用的便利性,屏風側邊特別設置檯面,配合餐桌的優勢位置輕鬆置放隨身物品、鑰匙或餐食,體現了設計中貼心的置物輔助機能,極大化使用的便利性與從容感。
🏡 玄關區與客廳區分隔:透過玄關與餐廳的連結,我們設計的半高鞋櫃作為分隔,一邊為的進出門的置物平台,有效地創造出完整的落塵區。另一邊檯面為服務餐桌使用。屏風採用木質與玻璃,結合業主自選的燈飾,營造明亮而溫潤的用餐氛圍,讓空間在日常中呈現柔和且有韻律的節奏。
👠 鞋櫃與電子衣櫃:考量到現代居家對衛生與收納的高標準需求,透過一氣呵成的櫃體設計,將屋主所需的電子衣櫃完美收納於其中。從視覺上看,櫃體保持了流暢與一致性,同時極大地提升了玄關的實用機能。
💎 舊物新生紅花梨木櫃:面對具年代感且富有家庭情感的紅花梨木櫃,以「新舊融合」為題,置於玄關進入客廳的過道,在木櫃上方設置了現代簡約的上櫃收納,並搭配策略性的投射燈聚焦照明。透過光線的柔和引導,讓這件珍貴的舊物重獲新生,優雅地融入空間。
⭐ 水波紋玻璃屏風:巧妙運用水波紋玻璃的特殊紋理與通透感,成功減輕了屏風牆的厚重感。最重要的是,它能讓溫暖的燈光柔和穿透,同時利用紋理遮擋視線,完美兼顧了玄關所需的隱私性與光線流通。
這是兩位女兒房間,以低彩度、流行時髦的莫蘭迪粉為基底,調出甜美夢幻的色彩。
在這個坪數不大的小空間中,設計重點是同時保有美麗與實用,結合極致收納機能與年輕氛圍。我們巧妙地運用光條勾勒出舞台式的華麗效果,讓整體氛圍如同喝了一杯調酒般微醺柔和。
🏡 長型房間/小坪數規劃:針對長型房間的格局限制,採用將階梯式臥鋪與書桌一體成型的佈局。這個設計不僅是將睡眠、學習、收納功能高效整合,更實現了小坪數下的緊湊安排與空間的極大化效率,讓每一寸空間都發揮了最大的價值。
💡 夢幻與安全兼具:臥鋪下方的階梯燈光設計,除了氣氛營造也同時具備實質的機能性,有效提升夜間安全。柔和的間接光源更讓房間宛如舞台般絢麗,充滿專屬儀式感,讓歸家與休息都成為一種享受。
💎 高CP值視聽娛樂:床前投影幕是個花費不多卻能大大享受的設計!在不犧牲空間的前提下隨時享受影音娛樂,極大地滿足生活品味和居家休閒的需求,是我們對現代生活方式的貼心回應。
❤️ 極致收納與清潔:為了實現美觀與實用兼具,採用滿牆面的櫃體及層板設計,創造海量收納。這種設計能有效地減少房內的邊邊角角,同時將視線高度規劃少部分的檯面及層板擺放玩物與香氛,讓這些區域能很輕鬆地清理灰塵,從根本上降低了整理的負擔。
最終收尾,我們想聚焦於那些肉眼可見、卻需要匠心才能實現的工藝細節。
因為真正的設計質感往往藏於不經意的細節之中,我們的「溫柔與微光」設計哲學是透過精湛的工藝手法,將硬體結構轉化為充滿情感的藝術線條,讓細節來定義氛圍的深度。
因為真正的設計質感往往藏於不經意的細節之中,我們的「溫柔與微光」設計哲學是透過精湛的工藝手法,將硬體結構轉化為充滿情感的藝術線條,讓細節來定義氛圍的深度。
【⭐ 圓弧線條的溫柔哲學:光與結構的對話】
設計核心:消除銳利感,採用弧形導角曲面收邊造型設計。施工難度高於傳統直角,但能精準傳達美學目的:讓隱藏其中的間接燈光能夠均勻、柔和地擴散,避免光線生硬地切斷空間,為整個家帶來視覺上的包容性與舒緩的氛圍。
【💎臥室機能的細膩打磨:安全與氛圍的結合】
姊妹房的階梯式臥鋪,在機能上解決了小坪數的限制。在工藝上,我們堅持對每一個邊角進行圓弧導角處理。美觀的同時也提升夜間使用的安全性,讓床體結構呈現「懸浮感」,成功將機能性家具提升至藝術品級別。
【❤️ 質感材質的疊加:展示與聚焦】
獨立照明系統: 每一層玻璃層板都配有獨立投射或燈帶,確保屋主珍藏的玩物或香氛都能得到最佳的聚焦展示。
水波紋/長虹玻璃: 運用這些材質,讓光線在其中產生豐富的變化,既豐富了視覺層次,也巧妙地增添了空間的輕奢感。